Aller au contenu

Messages recommandés

Posté (modifié)

Salut les gars (et les filles!)

 

Bon, voilà, suite à mon dernier sujet ouvert ici, concernant la construction d'un observatoire, je pense que je vais finalement partir sur un abri plus conventionnel, avec une structure en bois sur une chape et pied colonne béton.

 

Bon, maintenant que mon choix est fait, j'aimerais savoir à quelle hauteur devra être mon pied colonne sachant que je suis sur EQ6 avec un 150/750.

Lorsque je vois les différentes constructions, j'ai vraiment l'impression qu'il faut être haut.

 

J'ai trouvé ce type http://www.castorama.fr/store/Abri-de-jardin-en-bois-Vittis--tuile-6m-prod13540068.html?sortByValue=lowHighPrice&navCount=5&navAction=push#, que je trouve intéressant pour son toit en résine, et je me dis qu'avec un système de charnière, on pourrait éventuellement l'ouvrir du haut et rabattre sur les côtés le toit.

Regardez la vidéo d'explication du montage, vous pourrez voir ce que je pense.

 

Un petit croquis (je sais c'est moche!!!:p)

 

sans_t11.png

 

Alors je ne sais pas trop si c'est possible, mais je fais appel à vous car je ne sais pas trop si le projet est jouable, sinon, je partirais sur un toit coulissant classique.

 

Merci d'avance, je compte sur vous!

 

@+

David.

Modifié par clapiotte
Posté

Bonjour clapiotte,

Les deux pentes coulissent, moi je pense que c'est possible , mais à mon avis cela devrait être plus fragille lorsque c'est refermé, au niveau jointure des deux pentes (étanchéite, résistance aux vents ...)

Voir les avis de ceux qui ont construit leur Observatoire.

C'est juste une réfléxion à brute.

Bon courage pour ton projet, tu aura pas mal d'avis sur Webastro c'est sur.

 

Bon Ciel

 

Marc

Posté

Salut David,

 

Un des problèmes de cette méthode, mais parmi d'autres, c'est l'humidité qui risque de se déposer sur les faces internes du toit et ensuite s'écouler à l'intérieur du local une fois celui-ci refermer.

J'ai aussi un projet, qui ne peut être ni à dôme, ni à toit coulissant (méthode classique). J'y réfléchis :?: Et comme dans ton cas j'ai calculé que la monture serait positionnée assez haut ... Je penche donc pour un plancher rehaussé, éventuellement mobile avec des vérins synchro pour régler son positionnement en hauteur.

Posté
Salut David,

 

Un des problèmes de cette méthode, mais parmi d'autres, c'est l'humidité qui risque de se déposer sur les faces internes du toit et ensuite s'écouler à l'intérieur du local une fois celui-ci refermer.

Ah, oui, pas pensé à ça!

 

J'ai aussi un projet, qui ne peut être ni à dôme, ni à toit coulissant (méthode classique). J'y réfléchis :?: Et comme dans ton cas j'ai calculé que la monture serait positionnée assez haut ... Je penche donc pour un plancher rehaussé, éventuellement mobile avec des vérins synchro pour régler son positionnement en hauteur.

 

Tu as commencé à travaillé dessus?

 

Perso je pourrais faire un toit coulissant, mais c'est juste pour voir si il a d'autres méthodes.

Posté

 

Tu as commencé à travaillé dessus?

 

 

J'ai déjà un local bois/tuile 6m2 à usage "aquatique" et comme ma tendre et chère (et je n'ai pas le choix) accepte un local astro à condition que le style soit identique:b: j'ai choisi de rajouter un même local et d'ouvrir la partie centrale du toit 1,40 * 2,00 et la couvrir de 2 réhausses de toit coulissantes vers le bas de chaque coté de toit.

Voici en PJ un peu ce que j'imagine. Il y a quelques aspects techniques à régler pour lesquels j'ai quelques solutions en tête.

Plan_dessus.jpg.c0d4aef7ebc9e34b3cb64ea07dc240fb.jpg

Plan_Lateral.jpg.17e670b5b772f86939ae21805efc7a4f.jpg

  • 2 semaines plus tard...
Posté

Bon je suis reparti sur autre chose, en m'aidant de plan trouvé sur la toile. J'en profite pour réaliser un abri de jardin de 5.5m² à côté, le tout sans dépasser les 20m² pour le permis de construire.

 

plan_o11.jpg

 

ybauch10.jpg

 

ybauch11.jpg

 

ybauch12.jpg

 

ybauch13.jpg

 

Bon, je ne sais pas encore si je pars sur du parpaing, ou un abris en bois, mais surtout c'est la conception du toit roulant qui va me poser le plus de problème.

 

Vous auriez des tutos faciles pour les nuls en bricolage?

Posté

Salut Clapiotte

 

Je suppose que tu veux un toit mobile uniquement sur la partie observatoire car sur toute la longueur, ça fait un sacré toit à faire et à déplacer. Dans ce cas, je ne vois pas bien l'intérêt du petit local pour piloter le tout. Ce dernier serait à ciel ouvert, avec une cloison inutile. Je pense que cette partie devrait être positionnée coté abri de jardin, sous la partie avec un toit fixe, ce qui te permettrait de rester à l'abri.

 

Côté construction d'un toit mobile, ce ne sont pas les exemples qui manquent sur ce forum. Voici la description de celui que j'ai fais pour mon abri : http://www.webastro.net/forum/showthread.php?t=117695

 

Un autre exemple : http://www.webastro.net/forum/showthread.php?t=121122

Posté

Le toit sur charnière avec deux battants c'est ce que j'ai fais sur mon très modeste abri et franchement c'est correct sur des petites tailles mais ça peut vite devenir lourd.

Et puis c'est pas si simple d'avoir un bon angle d'ouverture tout en assurant une bonne étanchéité.

 

Une photo de mon abri ou on voit une partie du toit ouvert. L’abri ne fait que 2x2m donc ça va mais plus grand c'est je pense moins viable.

 

14303-1399318336.jpg

Posté
Salut Clapiotte

 

Je suppose que tu veux un toit mobile uniquement sur la partie observatoire car sur toute la longueur, ça fait un sacré toit à faire et à déplacer. Dans ce cas, je ne vois pas bien l'intérêt du petit local pour piloter le tout. Ce dernier serait à ciel ouvert, avec une cloison inutile. Je pense que cette partie devrait être positionnée coté abri de jardin, sous la partie avec un toit fixe, ce qui te permettrait de rester à l'abri.

 

Côté construction d'un toit mobile, ce ne sont pas les exemples qui manquent sur ce forum. Voici la description de celui que j'ai fais pour mon abri : http://www.webastro.net/forum/showthread.php?t=117695

 

Un autre exemple : http://www.webastro.net/forum/showthread.php?t=121122

 

C'est vrai c'est tout con mais je n'y avais pas pensé! Je vais refaire mon plan avec le local tech côté abris de jardin.

 

Merci pour les liens à tous... j'avais déjà vu la plupart... ce que je cherche c'est comment faire concrètement pour fabriquer le roulant avec des côtes.

Posté

Penses à mettre une fenêtre ou une lucarne (pas nécessairement ouvrante) entre le local où se trouvera l'ordinateur et la pièce ou sera installé le télescope car il est bon de pouvoir surveiller comment se déplace le tube. Le remote en aveugle, c'est bien mais il y a des fois où l'informatique est capricieuse et fait faire des mouvements pas forcément désirés à la monture :confused:

Posté

bonjour à tous

 

Benjamindenantes: Peux tu,stp, m'expliquer comment est monté ton toit?

 

Je suis en train de trafiquer une vieille cabane de jardin pour y mettre mon telescope et ne voudrais pas faire un toit roulant donc ta solution m'interesse

 

Merci

Posté

Bon, j'ai refait quelques petites modifs, vous en pensez quoi?

Le toit, je le ferais s'ouvrir vers le haut du schéma, à savoir vers le nord.

 

410.jpg

 

110.jpg

 

210.jpg

 

310.jpg

Posté

Pourquoi ne pas faire ta pièce ordi sur toute la largeur de ton abri, car sur ton plan, il reste une zone de 0,83m de large sur 1,23m de profondeur qui est un peu un "cul de sac". Tu ne vas pas pouvoir tirer grand parti de cette zone.

 

En occupant la largeur complète, cela te permettrait d'avoir un dégagement supplémentaire pour que la porte qui permet d'accéder au télescope s'ouvre plutôt dans le local ordi et non vers la zone où se situe le télescope. Dans certaines positions de la monture, tu risques de taper la porte dans le tube ou la barre de contrepoids.

 

Concernant le dégagement du toit, dans un de tes messages, tu précisais vouloir le déplacer vers de haut (nord). Je pense que vu les dimensions de l'abri, la faitière sera dans le sens de la longueur. Si une partie du toit est fixe, tu vas avoir du mal à déplacer la partie mobile vers le haut. Tu auras des difficultés à obtenir une étanchéité entre les 2 parties. Il faudrait (à mon sens) que tu prévoies plutôt un déplacement vers la droite (est). Le toit fixe pourra disposer d'une partie qui vient recouvrir la partie mobile pour assurer l'étanchéité.

 

Dessines ton toit et tu verras ce qu'il en est.

  • 1 année plus tard...
Posté

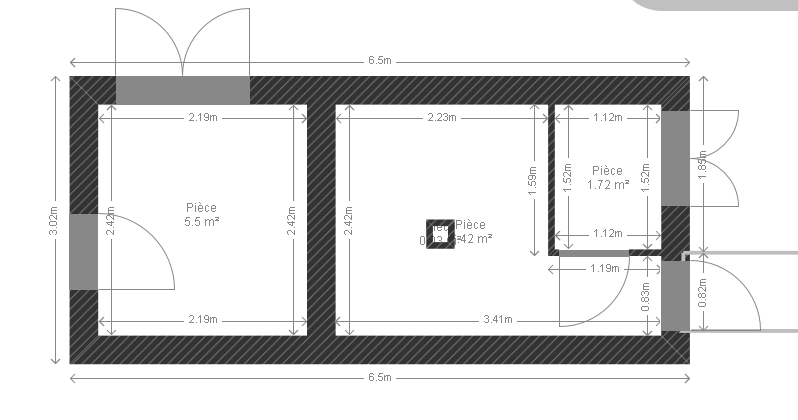
Bon ça y est je pense avoir trouvé la config qu'il me faut!

 

plan_o12.jpg

 

plan_o10.jpg

 

plan_o11.jpg

 

Dalle béton, et pied colonne et structure en bois. y'a plus qu'à!!

 

Pour les dimensions, vous en pensez quoi?

Posté

Et pourquoi ne pas faire une seul porte, accès au télescope, et une intérieur qui donne sur le bureau avec ouverture vers le bureau ? ça évite de devoir sortir du local pour faire une modif sur le tube ! Une idée comme ça ...

 

Eric

Posté (modifié)

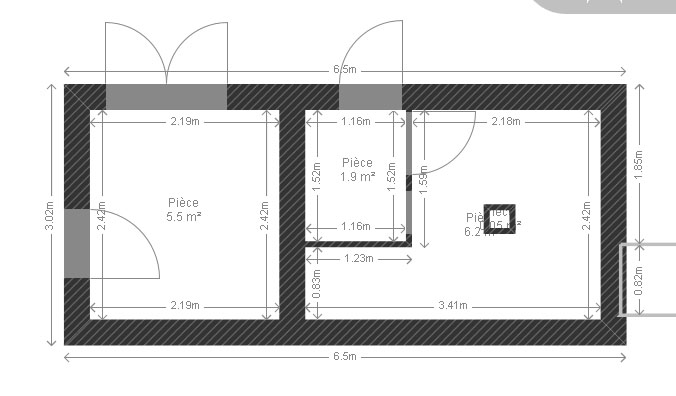
Nouveau plan

 

plan_o13.jpg

 

Pour info j'ai noté la direction du nord, ainsi que l'espacement entre l'obs et les colonne pour le toit. Je ne souhaite pas ouvrir en entier au dessus de la partie de gauche qui sera soit une remise (bordel d'outillage et tondeuse!) ou le dobson quand il sera acheté.

 

Sinon, je suis à 7m² pour l'observatoire, c'est suffisant? Sachant que je ne dois pas dépasser les 12m² sinon, je suis obligé de faire une construction avec les mêmes revêtements que la maison qui est en construction.

 

C'est pour ça chatbleu54, que j'ai fais 2 portes d'accès.

 

Pour info, la visu du site:

 

pano_210.jpg

 

D'autres avis?

Modifié par clapiotte

Rejoignez la conversation !

Vous pouvez répondre maintenant et vous inscrire plus tard. Si vous avez un compte, connectez-vous pour poster avec votre compte.

Invité
Répondre à ce sujet…

×   Collé en tant que texte enrichi.   Coller en tant que texte brut à la place

  Seulement 75 émoticônes maximum sont autorisées.

×   Votre lien a été automatiquement intégré.   Afficher plutôt comme un lien

×   Votre contenu précédent a été rétabli.   Vider l’éditeur

×   Vous ne pouvez pas directement coller des images. Envoyez-les depuis votre ordinateur ou insérez-les depuis une URL.

  • En ligne récemment   0 membre est en ligne

    • Aucun utilisateur enregistré regarde cette page.
×
×
  • Créer...

Information importante

Nous avons placé des cookies sur votre appareil pour aider à améliorer ce site. Vous pouvez choisir d’ajuster vos paramètres de cookie, sinon nous supposerons que vous êtes d’accord pour continuer.