Aller au contenu

Messages recommandés

Posté (modifié)

Bonjour,

L'idée de me construire une table équatoriale pour mon dobson Kepker 254/1250 me trotte dans la tête depuis très longtemps et j'ai décidé de m'y remettre disons sérieusement.

J'ai donc pas mal potassé le sujet et écumé les différents site internet. Je me lance dans la construction d'un modèle comme celui la : http://rmi.free.fr/Astro/table_equatoriale.htm

Pour toutes les tables équatoriales, le centre de gravité du dobson est un élément important qui affectera la précision du suivi si j'ai bien compris.

Je viens donc solliciter votre aide pour m'aider à calculer au plus juste le centre de graviter de télescope, car je suis comme qui dirais pas sur de mon coup.

 

Voici les éléments techniques:

Le tube fait 17kg

La base fait 17 kg

L’extérieur du tube à un diamètre de 304mm

 

Voici une image du dobson avec les cotes ajoutés:

 

cote_dobson.png.63d730123df3117cee9e04e1e09acfa8.png

 

 

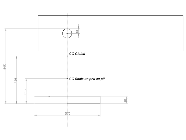
Schéma de l'ensemble :

 

table.png.28c413f099f7bdaea62097b45e41ac74.png

 

Comme vous pouvez le voir, la base n'est pas totalement cubique et je n'ai pas l'ensemble des cotes, sur le schéma j'ai donc uniquement dessiné les plateaux rotatifs.

 

Voici ma méthode de calcul qui demande à être critiquée, modifiée, améliorée ou confirmée :

 

Le plateau au sol et le plateau rotatif étant certainement les éléments les plus lourds du socle, je fais l'hypothese que le centre de gravité du socle n'est pas totalement au milieu mais plutot à 1/3 en partant du bas. Je sais, c'est du pifomètre total, j'aimerai d'ailleurs affiner cette valeur mais comment ....

Le socle fait 645mm de haut. 645 x 1/3 = 215. Le centre de gravité du socle est donc pifométriquement à 215mm de hauteur.

 

Le diamètre de la roue d'altitude du tube est de 80mm avec en son centre le centre de gravité du tube qui se situe donc à 40mm du haut du socle.

 

Ci-dessous un schéma à main levé du socle à l’horizontal.

IMG_20200821_124415.jpg.f5ad51ebe60e1c6b134304d2827d4b63.jpg

 

Donc nous avons :

CG du socle à 215mm du bas

CG du tube à 40mm du haut

Et le tube et le socle qui font tous deux 17kg.

Le CG de l'ensemble devrait donc etre exactement au milieu de ces deux points.

645-40-215=390

390/2 + 215 = 410

 

J'estime le CG de l'ensemble à 410mm de hauteur. Qu'en pensez-vous ? Me suis-je totalement planté ?

Merci d'avance pour votre aide.

 

 

Modifié par soulearth
Posté

Xcg = Somme(Xi x Mi) / Somme(Mi)

Ycg = Somme(Yi x Mi) / Somme(Mi)

Zcg = Somme(Zi x Mi) / Somme(Mi)

 

Xi, Yi, Zi et X, Y, Z étant les coordonnées des centres de gravité de chaque pièce élémentaire de masse Mi, exprimées dans un repère commun.

 

Pour la détermination du CDG de ton socle, il suffit de le suspendre sur un câble et de regarder comment il se place à l'équilibre. Trace un trait à l'aplomb du fil. Change ensuite le point d'attache, et recommence. Le CDG se trouvera à l'intersection des deux traits. C'est plus facile à dire qu'à faire...

Posté (modifié)

Bonjour Fred.

Merci pour ce retour. Pour le CG du rocker je pense que je vais essayer de le mettre en équilibre couché a l'horizontale sur  par exemple une planche verticale d' 1 cm d'épaisseur... A faire a plusieurs bien sûr a plusieurs afin d'éviter toute catastrophe.

Modifié par soulearth

Rejoignez la conversation !

Vous pouvez répondre maintenant et vous inscrire plus tard. Si vous avez un compte, connectez-vous pour poster avec votre compte.

Invité
Répondre à ce sujet…

×   Collé en tant que texte enrichi.   Coller en tant que texte brut à la place

  Seulement 75 émoticônes maximum sont autorisées.

×   Votre lien a été automatiquement intégré.   Afficher plutôt comme un lien

×   Votre contenu précédent a été rétabli.   Vider l’éditeur

×   Vous ne pouvez pas directement coller des images. Envoyez-les depuis votre ordinateur ou insérez-les depuis une URL.

  • En ligne récemment   0 membre est en ligne

    • Aucun utilisateur enregistré regarde cette page.
×
×
  • Créer...

Information importante

Nous avons placé des cookies sur votre appareil pour aider à améliorer ce site. Vous pouvez choisir d’ajuster vos paramètres de cookie, sinon nous supposerons que vous êtes d’accord pour continuer.